Price €300,000 - Sold


  • GFCH with recently serviced boiler
  • Spacious accommodation
  • Newly fitted kitchen with integrated dishwasher
  • Newly fitted blackout blinds throughout
  • High ceilings throughout
  • Large picture frame windows spanning the width of the property with Panoramic views
  • Intercom
  • Lift
  • Allocated secure underground parking
  • Wired for cable TV

McGuirk Beggan is thrilled to present this superb apartment to the market. No. 36A Lansdowne Valley is a spacious loft-style two-bedroom, two-bathroom, top floor apartment which boasts expansive light-filled accommodation with panoramic views across the Dublin Mountains and city, high ceilings and a newly fitted kitchen. The property is in excellent condition throughout. The development is exceptionally convenient and highly renowned, ideally located just off Slievebloom Road. Accessed through an immaculate secure entrance foyer which features both a lift and stairs to all floors as well as access to the underground car park, the property also features a private communal garden area. This property offers high-quality accommodation within a quiet, mature setting. The apartment offers the perfect opportunity for someone looking to step onto the property ladder, someone trading down looking for a more manageable home or a fantastic investment opportunity.

Lansdowne Valley is a highly regarded development surrounded by a host of excellent amenities, including schools, shops, bars, restaurants, Drimnagh and Crumlin Villages, Our Lady's Children's Hospital and many leisure facilities and nearby parks. There are great transport links, and the property is serviced by six different Dublin Bus routes, with the Red Luas line within a short walk, along with easy access to the Long Mile Road and Naas Road, with convenient access to the M50 and motorway network.

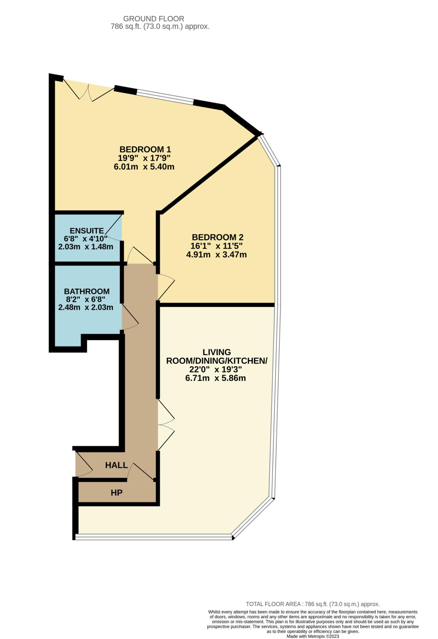
The accommodation briefly comprises entrance hall, living/dining room, kitchen, two double bedrooms, one main bathroom and one en suite.

This fantastic apartment offers the new purchaser exceptional living space and copious amounts of natural light throughout viewing is highly recommended.



Notice
Please note we have not tested any apparatus, fixtures, fittings, or services. Interested parties must undertake their own investigation into the working order of these items. All measurements are approximate and photographs provided for guidance only.


/// mime.frost.hint is the what3words address for the best entrance. what3words has given every 3 metre square in the world a unique combination of 3 random words.

Floor Plan
BERBER No :105165518
Energy Performance Indicator: 209.34 kWh/m2/yr

The Energy-Efficiency Rating is a measure of a home's overall efficiency. The higher the rating, the more energy-efficient the home is, and the lower the fuel bills are likely to be.

Utility Supply Type
Electric
Gas
Water
Sewerage
Broadband
Telephone

Other Items Description
Heating
Garden/Outside Space
Parking
Garage

Broadband Coverage Highest Available Download Speed Highest Available Upload Speed
Standard
Superfast
Ultrafast

Mobile Coverage Indoor Voice Indoor Data Outdoor Voice Outdoor Data
EE
Three
O2
Vodafone

Broadband and Mobile coverage information supplied by Ofcom.


marker icon